Jeff Peiffer and his daughter Rachel Trettin hoped the Douglass (Mont.) Township Supervisors would lend an ear to their proposal to establish a corn maze on the Schlegel Farm, but instead the supervisors may have detected the kernel of a problem.
The two were before the supervisors making their pitch for township support for their zoning application later this month. Peiffer is under contract to buy 70 acres of the 100-acre farm, which is permanently preserved farmland under a conservation easement.
The easement allows for agriculturally-related business enterprises such as the corn maze and pumpkin patch, but the zoning board permission is required, explained Peiffer's attorney, Ken Picardi.
Peiffer and family have experience, having operated them on Township Line Road outside Royersford and on Spiece Road, near Cedarvill Road, in East Coventry.
Peiffer and his daughter emphasized that the maze is family friendly, that all those under 16 must be
![]() |
| Rachel Trettin shows the flag that gets waved when corn maze visitors want to be led out. |
Trettin said the point of the family's corn mazes is to find 16 game pieces hidden in the maze.
She said each group carries a flag that is waved if anyone wants to be led out of the maze. They are spotted by a worker on a tower named "Pop," last name Corn.
The "corn cops," led by a Kernel, escort anyone who wants to leave out of the maze.
Resident Karen Lewandowski said she supports such activities as a way to keep farms financially viable, rather than the land going to a developer.
But while Peiffer mollified such likely concerns as keeping lights and sound low, that parking would be adequate and safely arranged, and that the mazes are not scary, there was one item which the supervisors weren't sure they could shuck. (sorry, couldn't resist).
To minimize impact on Schlegel Road, which is dirt and stone and often washes out in the rain, the family proposes bringing traffic in off Oberholtzer Rooad, so they are only on Schlegel Road for about four-tenths of a mile, said Trettin.
Using an Oberholtzer Road address on the website will mean 90 percent of those who come will use a GPS system and come in the right way said Peiffer.
The maze will also not be open in the rain, Peiffer said.
But the supervisors remained unconvinced given, as Chairman Alan Keiser noted, the plans Peiffer outlined could mean a total of 4,000 cars, plus buses, on Schlegel Road in a single season.
They will consider the matter as they have one more meeting before the zoning board meets. They can support the application, oppose it, or remain neutral as the decision is ultimately up to the independent zoning board.
Changes to Age-Restricted Zoning Approved
In other matters, the Board of Supervisors conducted a public hearing on a zoning change for the overlay district that permits age-restricted housing.
As The Mercury reported in print Monday morning, Township Manager Peter Hiryak said 50 acres of the proposed project is in Douglass Township and 20 acres in Colebrookdale Township.
Hiryak said the proposal is at 650 Englesville Road, near the intersection of Mill Street and Sweinhart Road which runs parallel to Route 100 near the Berks County line.
The ordinance requirements are a minimum residential use of 65 percent, non-residential minimum use of 15 percent with 20 percent open space.
One woman from the audience commented that the amenities the change will allow, a clubhouse with gym, a pool and other amenities, "sound like a country club. I see it happening all over, new developments are for wealthy and well-to-do, older residents who have lived here all their lives cannot afford places like this."
After the hearing, the supervisors voted unanimously to adopt the changes.
'Zern Tract' Building Schedule
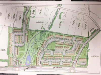
The other significant matter undertaken Monday night was the adoption of a building schedule for the "Zern tract," the 236-acre townhouse project that has been in the works for years and was approved March 4.
Supervisor Josh Stouch reminded residents that the Zern Tract and Zern's are too very different
things.
The famed-but-now-defunct Zern's Market is not being redeveloped as a townhouse development, they are being built on the 285 acres behind the market.
Under the resolution the supervisors approved, would require phase one of 74 homes to begin by July 1; 80 more homes would have to be started by August of 2021; and the final 82 townhouses must begin construction by April, 2023.
Supervisor Anthony Kuklinski said the resolution is so the project does not drag on too long, and that the resolution contains "enforcement provisions" if the project lags or fails to meet those milestones.
And with that, here are the Tweets from the meeting.
Getting Really Corny Around Here




No comments:
Post a Comment